
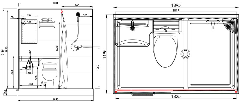
MTU1219 | ||
Имя | Спецификация | |
Основные части | Модульный шасси SMC | 1195x1895x180mm |
композитная стеновая панель ABS | H=2200mm | |
сотовая панель | 1220x2600mm | |
Слайдирующие стеклянные двери | 1825x2000mm | |
Моечная + душ | зеркало | 400x600mm |
P-образная раковина | L=1000mm | |
Кран для раковины | ||
Душевые сопло | ||
| Вода в раковину | ||
| Треугольный стеллаж | 210x210mm | |
| душевая занавеска | ||
Рамки для полотенец и полотенец для ванны | 400mm | |
Уборная | туалет | |
| антигрибковый герметик | ||
| Волнообразный трубопровод | 400mm | |
дренажный фланец | 75mm | |
электроприборы для | Светодиодный светильник | 4000k |
вытяжной вентилятор (С защитной коробкой от брызг) | ||
| вытяжной вентилятор | 300x300mm | |
Конвертер вентилятора | 300x300mm | |
Установить компонент | холоднокатаный профиль | |
| резиновый валик | ||
| Медная затяжка | ||
| водопровод | ||
| ПВХ-труба для сточных вод | ||
| угловой профиль | ||
| Трехходовой поворотный переход | ||
| Силиконовая смола | ||
| многофункциональный клей | ||
Установка крепежных элементов (винтовые узлы) | ||